Propósito
El propósito de este documento es divulgar entre la comunidad del Recinto de Ciencias Médicas que utiliza la biblioteca la normativa que facilita el uso de los salones de estudio grupal que están ubicados en el tercer y cuarto piso de nuestro edificio.
Descripción de las instalaciones
La Biblioteca cuenta con once (11) salones de estudio grupal: cuatro (4) en el tercer piso y siete (7) en el cuarto piso. Estos pueden ser utilizados por toda la comunidad del Recinto de Ciencias Médicas (UPR) para ofrecer clases, talleres, ensayar presentaciones grupales y realizar reuniones con fines académicos.
Los salones del tercer piso están disponibles 24/7, mientras que los del cuarto piso están disponibles de lunes a viernes, de 7:00 a.m. a 10:00 p.m. (excepto en verano y receso navideño).
Todos los salones están equipados con pantalla inteligente, pizarra blanca móvil con marcadores no permanentes, instalaciones eléctricas para conectar computadoras y acceso al servicio de Internet inalámbrico provisto por la Universidad de Puerto Rico.
A continuación, ofrecemos un croquis con la ubicación de los salones del cuarto piso y la capacidad máxima de personas que pueden acomodarse allí.
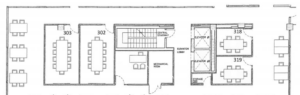
Croquis de salones del 3er piso de la Biblioteca Conrado F. Asenjo

| Salón | Ubicación | Capacidad | Mínimo de usuarios |
| C-302 | Frente a cristales de las Salas de Colecciones Especiales | 10 personas | 5 |
| C-303 | Frente a la puerta de las Salas de Colecciones Especiales | 10 personas | 5 |
| C-318 | En el pasillo hacia la puerta de emergencia | 6 personas | 3 |
| C-319 | En el área cercana a la escalera principal | 6 personas | 3 |
Croquis de salones del 4to piso de la Biblioteca Conrado F. Asenjo

| Salón | Ubicación | Capacidad | Mínimo de usuarios |
| C-402 | Primer salón a la izquierda al salir de los elevadores | 4 personas | 2 |
| C-403 | Segundo salón a la izquierda al salir de los elevadores | 4 personas | 2 |
| C-404 | Tercer salón a la izquierda al salir de los elevadores | 4 personas | 2 |
| C-405 | Cuarto salón a la izquierda al salir de los elevadores | 4 personas | 2 |
| C-406 | Quinto salón a la izquierda al salir de los elevadores | 4 personas | 2 |
| C-409 | Segundo salón a la derecha al salir de los elevadores | 6 personas | 3 |
| C-410 | Primer salón a la derecha al salir de los elevadores | 6 personas | 3 |
Normas de uso de los salones
- El préstamo de salones es exclusivo para estudiantes, facultad y personal del RCM. Todo usuario deberá presentar una identificación (estudiantil, de empleado o de facultativo) del Recinto de Ciencias Médicas que esté vigente.
- Los salones se prestan para grupos de dos (2) o más usuarios pertenecientes al Recinto de Ciencias Médicas. Al momento de utilizar el salón asignado, deben estar presentes al menos dos usuarios.
-
- En el mostrador de Circulación (lunes a viernes, de 7:00 a.m. a 5:45 p.m.).
-
- Ante el oficial de seguridad en el vestíbulo de la Biblioteca (lunes a viernes, de 6:00 p.m. a 7:00 a.m., y durante fines de semana, 24 horas).
- No se aceptan reservaciones.
- Para garantizar la participación del mayor número posible de usuarios, los salones se prestarán por un máximo de tres (3) horas consecutivas. Los usuarios que tengan un salón en uso podrán renovarlo una sola vez por dos (2) horas adicionales, solo si el salón continúa disponible. La renovación deberá solicitarse en el momento exacto en que expire el período de uso.
- El mobiliario deberá permanecer en su lugar; no se permite retirar mesas ni sillas del área.
- Al finalizar el tiempo de uso, los usuarios deberán dejar el área limpia de pertenencias personales, papeles u otros materiales.
- La Biblioteca no se hace responsable por la pérdida de materiales ni de equipos dejados en el área.
- Con el fin de garantizar el buen uso de los salones, la Biblioteca se reserva el derecho de realizar inspecciones.
- Se prohíbe:
-
- El consumo de alimentos en los salones (solo se permite agua).
-
- Retirar cables o dispositivos de comunicación de los monitores.
-
- Retirar muebles o pizarras portátiles de los salones.
-
- Utilizar marcadores permanentes en las pizarras blancas.
Funciones del personal de Circulación y Reserva y de los oficiales de seguridad
El personal de la Sección de Circulación y Reserva (lunes a viernes, de 7:00 a.m. a 6:00 p.m.) y los oficiales de seguridad (el resto del tiempo) estarán a cargo de:
- Prestar y renovar los salones.
- Asignar los salones en estricto orden de llegada de los usuarios.
- Retener las tarjetas de identificación vigentes de cada participante.
- Autorizar y garantizar el acceso a los salones.
Incumplimiento de estas normas
Si un usuario de las instalaciones de la Biblioteca incumple estas normas o incurre en una conducta que interfiera con el estudio y bienestar de los demás, el oficial de seguridad le llamará la atención de manera cordial hasta en dos ocasiones consecutivas. De persistir la conducta, el oficial solicitará al infractor que abandone el edificio y registrará lo ocurrido en el libro de novedades, consignando el nombre y procedencia del usuario, así como una descripción detallada del incidente.
El oficial informará a la administración de la Biblioteca para que, de considerarlo necesario, evalúe la aplicación de las sanciones correspondientes conforme al Reglamento General de la Universidad de Puerto Rico, el Reglamento del Personal Docente, el Reglamento de Estudiantes u otras normativas institucionales aplicables.
La administración de la Biblioteca se reserva el derecho de admisión ante cualquier eventualidad que comprometa el orden, la seguridad o el buen funcionamiento de sus instalaciones.




